新闻动态

NEWS DYNAMIC

公司新闻 行业新闻 设计分享

28

May

2021

中海再创“神户型”!全新“LDKG”,再现居住空间革命

作者:中建建设      浏览:1077次

近年来,产品主义回归已成为房企共识。让房子真正回归居住属性是近年乃至未来很长一段时间的主旋律,各大房企的创新几乎都在同一框架中,比如新中式、创新架空层、豪宅车库等。

在如此市场环境中,户型的功能空间创新也难免如出一辙。很多开发商选择套图了事,让人眼前一亮的产品并不多,那么在这样大同小异的户型设计中,想要获得客户欢心以下几个设计趋势要把握住:

 

• 超大面宽,采光通风更好,不会形成暗厅;

• 动线优化流畅,互不干扰;

• 空间利用率进一步提高,不浪费面积;

• 客厅设计更加多元化,满足每个家庭成员不同需求;

• 百变灵动,能满足全生命周期居住变化;

• 各个功能空间尺度合理,居住体验能大幅提升;

• 做到全屋收纳、全明户型、人性化细节考究;

......

 

看完这些趋势,不得不说,近两年人们对居住生活的要求又提高了,居住理念也发生了改变,越来越多的人从一味追求“大”、追求“多房间”,转变为更契合家庭生活的适度空间,拥有开阔空间、多变布局的户型成为人们的优选。

 

 

01            

               

               
全生命周期客厅            


       

 

最近和同事聊天,她想要买个100平左右的房子,在看房选房之前,就 已经 在脑子里把完美的房子勾勒出来了:

 

“希望一个户型可以有七八种变化,“简单地”改一下非承重墙,户型就可以变成不同的房间布局,甚至可以塞进去一家六口,适应不同的家庭,满足全生命周期的需求。 

 

听起来是很酷,但是 一个100平左右的户型 能做到全生命周期吗?又如何通过空间分割的随意变换,变成二房、三房、甚至四房,满足人生五个不同阶段的居住需求呢?

 

我们还真的寻到“宝”了:


 全生命周期模式 示意图

 

当你是单身贵族或者二人世界,餐厅旁边的房间打开做开放式书房或者与餐厅连为一体做超长工作台,而超宽客厅可以是家庭影院,拉上窗帘,躺着看投屏,氛围感拉满,也可以健身switch模式,或者邀请朋友过来聚会开party,享受社交快乐;

 

当孩子出生时, 超宽客厅 一侧可以做书房、兴趣区、手工台等等,餐厅旁边房间打开做儿童玩乐区, 可以在做饭的时候也能照看在玩耍的小孩;

 

当二孩时代来临,便可以将客厅一旁的多功能空间改造为开放的儿童玩乐区,可以享受亲子时光;

 

当家里孩子需要老人帮忙照看时,便可以将客厅一旁的多功能空间改造为可开可合的书房。

 


       

                                
                                
                                
                                
滑动查看下一张图片                               


               

 

约107㎡ 户型 客厅 示意图

 

没想到吧,这样“全能”的户型竟然是约107㎡的,市面上 能做到如此出彩的产品真是少之又少,但我们惊喜地发现,它就出现在了 珠海 · 中海 · 寰宇天下 

 

一个好的可变户型,不仅预留更多个性化和自主性设计空间,还可以通过空间的分割满足不同阶段的需要,不需要置换房子就可以一房多用。

 

不得不说,这个户型的可塑性很强,一次场景的革命,无数次细节研磨,只为满足居住者对空间多元化的需求。

 

 

02            

               

               
公区变化,整体舒适度提高            

 

 

可变户型是很神奇,确实可以通过重塑房间格局,在一定程度上解决房间数量不够的问题。

 

但现在用户对空间的需求已经不仅仅是房间的个数, 更希望有更多的创造性,追求宽敞舒适通透的空间 ,那么如何在空间中注入新的生活方式呢?

 

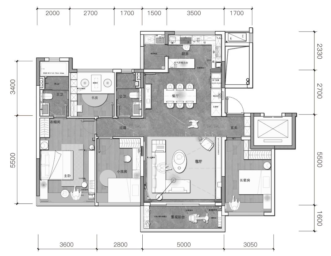
在珠海 · 中海 · 寰宇天下王炸户型 约129  一梯两户花园洋房 里找到了答案:

 

中海从人体工学动线、家庭结构以及生活习惯等方面多维考虑,优化家庭日常生活方式,将LDK(客餐厨)一体升级,在 约129㎡户型 上创新引入 “LDKG”新型空间理念 ,打造超尺度的家庭厅。

 

LDKG一体化空间 示意图

 

什么是LDKG一体化?就是将客、 餐 、 厨 、阳台公共空间融为一体,四大公区保持在一条直线上,这个空间俨然成为了户型里的“C位”。

 

在传统的竖厅里,厨房在整个客餐厅北侧的位置,有人在厨房做饭的时候,家人都在客厅,整个空间没有真正的融合。

 

一体化设计的厨房可封闭可开敞,还可以做西厨中岛,担纲社交厨房的重任,可以增强做饭的人与在客餐厅活动的人的互动,这样厨房更能融入进客餐厅。

 

厨房还辟出了家政间, 整个LDKG公区相当于整个户型面积的二分之一 , 高达约60㎡ ,从家居的舒适度和房屋面积的利用率上来讲,这样的户型也是目前市场认可度很高的户型。

 

约129㎡户型 客厅 示意图

 

“LDKG” ,是户型进化的一种表现,这个空间的升级,正说明大家的需求正在升级。正如马斯洛需求所说,当房屋满足了人类的吃住需求、安全需求的状态下,社交需求就变得较为迫切。

 

公区的更新升级,其实是在迎合这个趋势,随着生活的丰富程度,大家对公区的需求度,正在井喷式猛增,过去公区只是大家吃饭,看电视的地方,但现在,成了社交、聚会、亲子的MAX级宽幕空间。

 

升级公区,也就可以抓住更多用户的心。

 

 

03            

               

               
“全面屏”满足采光、景观需求            


       

 

后疫情时代,大家对 居家 采光的需求增加, 我们推荐过不少经典户型,这个约129㎡的户型是一个相当标准的方正大面宽户型,做到了 近15米的超大面宽 

 

这是什么概念呢?比其他同级户型宽了1米多,远超市场同类洋房面宽,整个户型在设计上没有一点浪费,尤其 约5米的宽厅 能容纳多种生活场景,一切从居住者的角度出发,简直堪称“神户型”。


 约129㎡户型 意向效果图

 

中海开启珠海全面屏时代的序章,项目首开地块全是 四开间 户型,均以超大面宽和大面积玻璃为主角,无框遮挡。

 

这就正如手机为了追求美观、极简风格、更高的屏幕占比一样,做到了 “全面屏”观景理念 ,外立面近乎满窗设计,实现玻璃更大化,增加了建筑的通透性与感光性。

 

花园洋房 示意图

十字门山海景色

 

项目 注重 户内 与景观之间的交流 ,规划 X型楼型 设计,巧妙错开楼栋对视,这能够保证“户户朝景”, 避免了行列式布局的单调、呆板及楼间距狭窄的不足,也减少了楼栋间的互相干扰。

 

楼栋分析 示意图

 

每户都可以更大程度观赏到园林景观,实现真正意义上的 户户有景,家家瞰园 

 

 

04            

               

               
关注“主卧小家化”            


       

 

关于主卧,你认为应该是怎样的?

 

个体也有个人隐私保护的需求,尤其是年轻夫妻希望有私密的相处时光。大家每天出去都在忙工作,回家就是忙孩子忙老人,等到夜深人静回到卧室,已经很累,两人之间的交流越来越少。

 

中海引入了 “主卧小家化” 概念,这 是一个需求和趋势,主卧功能更多、空间更大,也让居住体 验更加舒适。

 

“主卧小家化” 示意图

 

约5.5米+约3.4米的进深 ,突破传统主卧中“双人床+大衣柜”的单一设计,集起居、衣帽、 主卫 、自由四大功能于一体, 夫妻二人关上门就是一个独立的生活状态,可以各自学习、妆扮,互不干扰,通过 “主卧小家化“来实现对于个人空间及夫妻空间的需求。

推荐阅读

内江市东兴区郭北养老服务中心建设项目方案设计

今日南方小年——三桥设计愿您岁岁平安

今日腊八!

新起点 新征程 | 三桥设计院祝大家新年快乐

三桥入住福建省传图系统啦

冬至来了,可以数着日子盼春天啦